Sold out

Stunning new homes for sale in Erdington

Located in Erdington, a lively and popular suburb of Birmingham, Persimmon's exciting new development at Holly Fields offers a range of homes to suit all buyers. With its vibrant high street, superb transport links and proximity to retail parks and other attractions, Erdington is often cited as one of the most up-and-coming areas of Birmingham, particularly attractive to first-time buyers and families. 

Birmingham city centre is just under 5 miles away, and this great location also benefits from easy access to the M6, the M6 Toll, and the M42 for city links or trips into the countryside of Warwickshire and Leicestershire.

We are nearing the end of our very successful Holly Fields development with last plots remaining - enquire now!

Last plot remaining!

We are down to our last plot on our popular Holly Fields development! Speak to one of our sales advisors about our exclusive offers available.

14-minute drive to Birmingham city centre
Bustling local area with thriving shops and industry

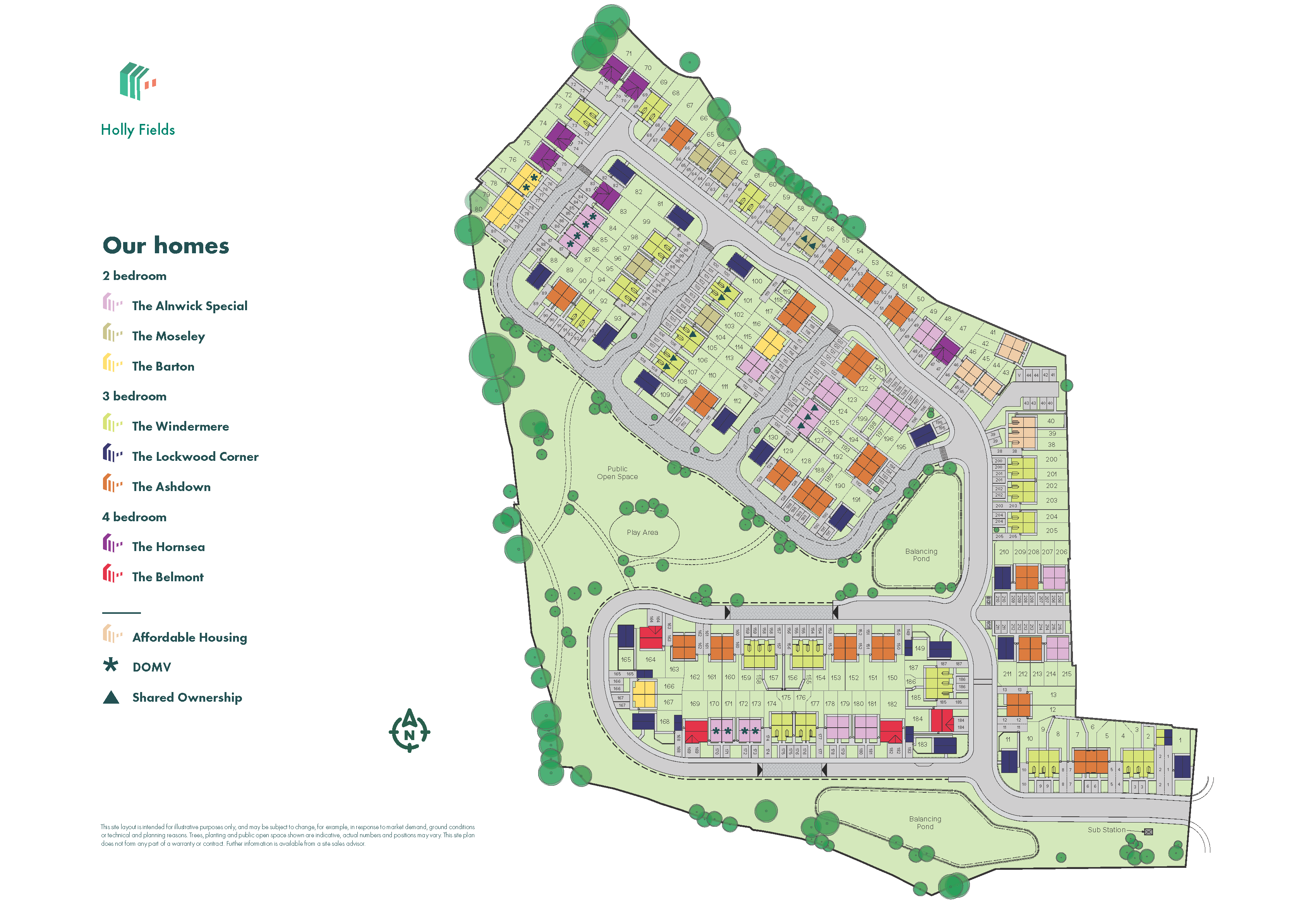
Holly Fields Site Plan

Site plan Disclaimer

Mortgage Calculator

Holly Fields Location Information

Shopping and entertainment

Erdington high street offers a selection of shops and services, while The Fort, a retail park with larger brands such as Primark, Next and Sports Direct, is just a mile away. Attractions are not in short supply – Birmingham hosts a fantastic selection of museums, entertainment venues, restaurants and historical sites.

Minimize your journeys

One of the main draws of this location is without a doubt the great transport links — from the development it's just a 14-minute drive to Birmingham city centre. Alternatively, you could take the train from Erdington Station (1.1 miles from Holly Lane) and be in Birmingham New Street within 15 minutes. Holly Fields is conveniently located for air travel, with Birmingham Airport just 20 minutes away. The area is also served by an extensive bus network.

Find fresh air close to the city

Despite the proximity to Birmingham city centre, there are several green spaces within easy reach of the development. Holly Lane Sports and Social Club, a five-minute walk from the development, offers football pitches, tennis courts and a bowling green, while a five-minute drive (or half-hour walk) will take you to Pype Hayes Park, a lovely area offering walking routes, landscaped gardens and a playground. From here you can also reach Pype Hayes Golf Course and Plantsbrook Nature Reserve, a peaceful retreat from the hustle and bustle of the city suburbs.

Holly Fields

Holly Ln, Birmingham, B24 9LU

Get Directions
Find out what it's like living in Birmingham
Discover more
Holly Fields is looked after by our Central region team.
Discover more

Finishing Touches

Create a look that's as individual as you are. Add the finishing touches to your Persimmon home.

Supporting your communities

At Persimmon we're proud to support our local communities. Our Community Champions programme was established in 2015 and has already donated more than £3 million to over 3,500 good causes across Great Britain. We also run a range of community events as part of our ongoing partnership with Team GB, along with other great initiatives. 

 

Community Champions logo

Our hugely successful Community Champions programme has already donated more than £1 million to good causes in England, Wales and Scotland. Whilst the programme is running, each of our regional offices makes a donation of up to £6,000 every quarter to local organisations.

Persimmon Homes official partner with Team GB

We're proud to be one of Team GB's official brand partners. Discover some of the exciting content created for this year's Paris 2024 Olympic Games, from athlete appearances to competitions and challenges.

Showcase your style

Why not share your own photos on Instagram using #LoveMyPersimmonHome and #PersimmonPrizes for a chance to win a £100 IKEA voucher. Visit our Facebook page for terms and conditions.

#LoveMyPersimmonHome

#PersimmonPrizes